Prodej rodinného domu, 92 m2
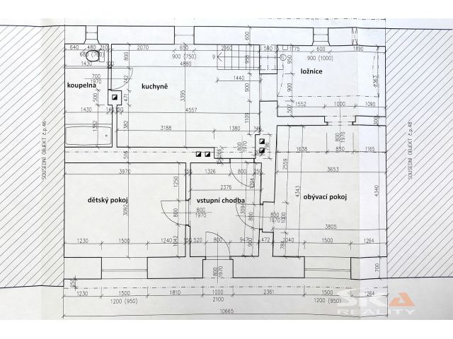
Exkluzivně nabízíme k prodeji nově vystavěný řadový rodinný dům o dispozici 3+1 v klidné části obce Líšťany, vzdálené cca 6km od města Louny. Dům stojí na pozemku obdélníkového půdorysu o celkové výměře 92 m2. Jedná se o stavbu z materiálu Ytong, která byla postavena přibližně před 13 lety na místě původní stavby s novou základovou deskou. Dispoziční řešení: vstupní chodba, nalevo je přístup do dětského pokoje, přímo z chodby se vstupuje do kuchyně, na kterou navazuje koupelna se sprchovým koutem a toaletou, napravo z chodby se nachází obývací pokoj, přes který je přístup do ložnice. Z chodby je dále přístupná půda, která slouží jako skladovací prostor. Dům je napojen na veškeré IS: veřejný vodovod, elektřina 220/380V, plyn, kanalizace. Vytápění je zajištěno plynovým kotlem umístěným v koupelně, který je napojený na podlahové i ústřední topení. Hlavní předností domu je jeho umístění v klidné části obce. V obci se nachází obchod, hostinec, obecní úřad, autobusová zastávka. Vzhledem ke skutečnosti, že zatím nemáme k dispozici PENB, uvádíme třídu energetické náročnosti budovy G. V případě zájmu pomůžeme vyřídit financování. Více informací poskytneme při osobní prohlídce nebo v RK.
3 990 000Kč
včetně provize, včetně právního servisu
Základní údaje
Užitná plocha [m²]
67
Počet podlaží v domě
1
Poloha objektu
řadový
Typ domu
přízemní
Druh objektu
cihlový
Stav objektu
velmi dobrý
Zastavěná plocha [m²]
92
Plocha parcely [m²]
92
Makléř této zakázky
Miroslav Reh
realitní makléř
+420 722 422 822
m.reh@sikareality.cz
Upřesňující údaje
Typ komunikace
| betonová: | NE |
| dlážděná: | NE |
| asfaltová: | ANO |
| neupravená: | NE |
Topení
| lokální plynové: | NE |
| lokální na tuhá paliva: | NE |
| lokální elektrické: | NE |
| ústřední plynové: | ANO |
| ústřední na tuhá paliva: | NE |
| ústřední elektrické: | NE |
| ústřední dálkové: | NE |
| jiné: | NE |
Dopravní dostupnost
| vlak: | NE |
| dálnice: | NE |
| silnice: | ANO |
| MHD nebo IDS: | NE |
| autobus: | ANO |
Elektřina
| 120V: | NE |
| 230V: | ANO |
| 380V / 400V: | ANO |
Voda
| studna nebo jiný vlastní zdroj: | NE |
| dálkový vodovod: | ANO |
| voda je v objektu i rozvedena: | NE |
Odpad
| kanalizace: | ANO |
| čistička: | NE |
Plyn
| individuální: | NE |
| plynovod: | ANO |
Makléř této zakázky
Miroslav Reh
realitní makléř
+420 722 422 822
m.reh@sikareality.cz





























