Prodej stavebního pozemku 1706m2, Vyžlovka- Jevany
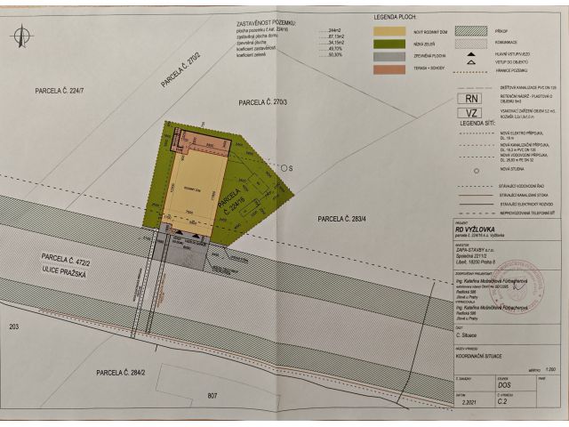
Nabízíme k prodeji stavební pozemek vhodný pro výstavbu rodinného domu. Pozemek o celkové výměře 1707 m2, se skládá ze 3 samostatných parcel(plánek ve fotogalerii), dle územního plánu je určeno k zastavění 244m2, ostatní možno využít jako zahradu, parkování apod.. Rovinatý pozemek lichoběžníkového tvaruje je umístěn při ulici Pražská v intravilánu obce Jevany- Vyžlovka, bezproblémový přístup se sjezdem z hlavní silnice( povolení sjezdu včetně projektové dokumentace), v přiléhající komunikaci jsou umístěny páteřní sítě s možností připojení(kanalizace, voda) , el. je již zavedena + povolení na studnu. K dispozici studie a projektová dokumentace na umístění RD( ve fotogalerii). Možnost přikoupení dalšího navazujícího pozemku, nebo jeho části, podmínky dle dohody. Další podrobné informace poskytne makléř zakázky. Doporučujeme
4 950 000Kč
včetně provize, včetně právního servisu, další pozn.:vhodné jako investice
Základní údaje
Celková plocha
1 706
m2
Druh pozemku
pro bydlení
Makléř této zakázky
Jan Maroušek
realitní makléř
+420 608 703 343
marousek@1jmreality.cz
Upřesňující údaje
Charakter okolní zástavby
obytná
Terén pozemku
rovina
Inženýrské sítě
| voda: | ANO |
| kanalizace: | ANO |
| plyn: | NE |
| elektřina: | ANO |
Typ komunikace
| betonová: | NE |
| dlážděná: | NE |
| asfaltová: | ANO |
| neupravená: | NE |
Dopravní dostupnost
| vlak: | NE |
| dálnice: | NE |
| silnice: | NE |
| MHD nebo IDS: | NE |
| autobus: | ANO |
Makléř této zakázky
Jan Maroušek
realitní makléř
+420 608 703 343
marousek@1jmreality.cz













